Dean Kallweit Architect
Info
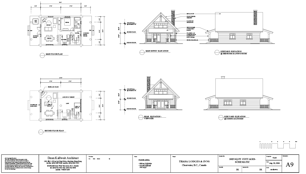
Trasa Lodge, Clearwater, British Columbia
Launch Photo Gallery
Trasa Lodges & Inns
Explore more projects »
New Homes
Renovations
Planning
In Progress
Home
About
Projects
Process
Associations
Contact